鋼結構工程 第8頁
當前位置:首頁 Tags:鋼結構工程 第8頁![拱板與山墻安裝節點圖]()
拱板與山墻安裝節點圖
江蘇杰達鋼結構工程有司今天給大家帶來18張拱形屋頂節點詳圖,下圖是拱板與山墻安裝節點。...
![普通單跨拱形屋頂安裝節點]()
普通單跨拱形屋頂安裝節點
江蘇杰達鋼結構工程有司今天給大家帶來18張拱形屋頂節點詳圖,下圖是普通單跨拱形屋頂安裝節點。...
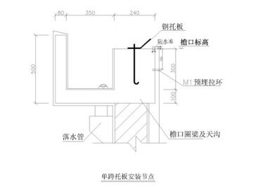
![單跨拱板安裝節點適用于工業廠房]()
單跨拱板安裝節點適用于工業廠房
江蘇杰達鋼結構工程有司今天給大家帶來18張拱形屋頂節點詳圖,下圖是單跨拱板安裝節點(工業廠房)...
![磚混結構單跨拱板安裝節點圖]()
磚混結構單跨拱板安裝節點圖
江蘇杰達鋼結構工程有司今天給大家帶來18張拱形屋頂節點詳圖,下圖是磚混結構單跨拱板安裝節點(帶落水管)...
![U型連跨拱板安裝節點圖]()
U型連跨拱板安裝節點圖
江蘇杰達鋼結構工程有限公司今天給大家帶來18張拱形屋頂節點詳圖,下圖是U型連跨拱板安裝節點...
![H型連跨拱板安裝節點圖]()
H型連跨拱板安裝節點圖
江蘇杰達鋼結構工程有限公司今天給大家帶來18張拱形屋頂節點詳圖,下圖是H型連跨拱板安裝節點...
![四川阿壩電站內拱形屋頂廠房工程]()
四川阿壩電站內拱形屋頂廠房工程
水電站廠房因特殊的地理位置和施工環境,對拱形屋頂安裝提出了極高要求,本項目為典型的高原山區洞內作業工程,具有較強的代表性。工程名稱:水電站室內廠房拱形屋頂施工項目建設單位:四川阿壩馬爾康金川縣某發電站...
![江蘇揚州高郵拱形屋頂結構罩棚工程]()
江蘇揚州高郵拱形屋頂結構罩棚工程
本工程為江蘇揚州高郵糧庫拱形屋頂倉間罩棚二期項目,主要采用拱形結構設計,結合混凝土短柱和H鋼橫梁,旨在提升糧庫儲備空間的功能性和結構穩定性。工程名稱:江蘇揚州高郵糧庫拱形屋頂倉間罩棚二期工程建設單位:江蘇省揚州市高郵某糧食公司...
![廣西貴港拱形屋頂廠房工程]()
廣西貴港拱形屋頂廠房工程
本項目位于廣西貴港,采用拱形波紋鋼屋蓋結構,施工工藝注重質量與效率,體現了現代鋼結構建筑的應用特點。工程名稱:廣西貴港車庫拱形波紋鋼屋蓋安裝工程建設單位:廣西省貴港市某單位...
![宿遷泗洪糧庫拱形屋頂罩棚工程]()
宿遷泗洪糧庫拱形屋頂罩棚工程
宿遷泗洪糧庫倉間罩棚新建工程是一項位于江蘇宿遷泗洪縣的鋼結構拱形屋頂施工項目,施工時間為2020年11月,由專業施工團隊組織完成,旨在為糧庫提供機械罩棚的功能性保護。工程名稱:宿遷泗洪糧庫倉間罩棚新建工程建設單位:宿遷泗洪石集糧庫...
![江蘇淮安糧庫罩棚拱形屋頂工程]()
江蘇淮安糧庫罩棚拱形屋頂工程
本工程為淮安直屬庫倉間罩棚改造項目,旨在提升糧食儲備庫的防護和作業效率,通過安裝金屬拱形罩棚,實現倉間空間的有效覆蓋和設備保護。工程名稱:淮安直屬庫倉間罩棚改造工程建設單位:淮安直屬庫內...
![山東棗莊拱形屋頂煤棚工程]()
山東棗莊拱形屋頂煤棚工程
拱形屋頂以其施工效率高、成本較低及空間利用率好等優勢,逐漸成為煤棚和砂石料廠等工業建筑的常見選擇。工程名稱:山東神棗莊市小跨度煤棚拱形屋頂安裝工程建設單位:山東棗莊礦業集團付村煤業有限公司...
